Villa singola in vendita

Carbonera, Via Papa Roncalli - San Giacomo Di Musestrelle
€ 190.000
3 locali 3 locali
182 Mq 182 Mq
2 bagni 2 bagni

Villa singola in vendita

Carbonera, Via Papa Roncalli - San Giacomo Di Musestrelle

Descrizione annuncio

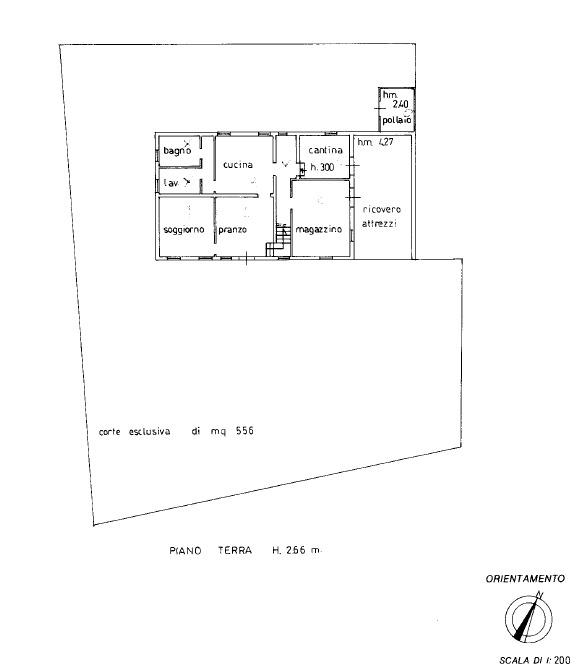
Carbonera, zona San Giacomo di Musestrelle, Studio Rinascita . propone in esclusiva casa singola dei primi anni del 900 su due livelli fuori terra con 556 mq di scoperto privato. L'immobile è così composto: al piano terra troviamo soggiorno e cucina separata, sala da pranzo, una lavanderia, un bagno finestrato con la doccia, una cantina, un magazzino e un ricovero attrezzi. Tramite una scala di accesso interna si accede al primo piano dove troviamo due camere da letto matrimoniali, una camera da letto singola e un secondo bagno finestrato con la vasca. L'immobile ha subito una ristrutturazione durante il corso degli anni, nel 1960 per quanto riguarda la parte dell'impiantistica e nel 2010 per ciò che concerne, invece, i bagni. Il tetto è stato completamente rifatto. L'immobile gode di un'ottima esposizione a sud che permette un'illuminazione degli ambienti per la maggior parte della giornata. La strada pubblica, inoltre, risulta essere ben illuminata durante le ore notturne. La proprietà si trova in una posizione strategica: dista solamente 3,5 km dal centro commerciale Tiziano di Olmi, 5,5 km da Carbonera e 11 km dal centro di Treviso. L'immobile è libero da subito.

Mostra tutto

Nelle vicinanze

Trasporto pubblico Trasporto pubblico
Olmi - Spercenigo
Olmi - Spercenigo
2,1 Km
Trasporto pubblico
2,6 Km
Ricariche auto elettriche Ricariche auto elettriche
Breda di Piave Industrie | EnelX
1,9 Km
DriWe Tiemme
2,4 Km
Conad CC Tiziano Olmi Treviso | EnelX
2,4 Km
Scuole Scuole
Scuole
680 m
Elementari
780 m
Scuola Elementare
2,5 Km
Farmacia Farmacia
Parafarmacia Conad
2,4 Km
Farmacia Claudia Augusta
2,7 Km
Supermercati Supermercati
Conad
2,4 Km
Fresco & Vario
2,6 Km
Negozi Negozi
Bergamo Abbigliamento
2,4 Km
Conbipel Spa
2,5 Km
Alimentari Camatta
2,6 Km
Pane e Dolci
2,6 Km
Da Roberto
2,7 Km
Bar Bar
Bar
2,7 Km
Bar Centrale
3,0 Km
Ristoranti Ristoranti
Trattoria da Pegorer
1,5 Km
Da Silvano
1,9 Km
Pizzeria da Teddy
2,4 Km
Doc Kabab
2,5 Km
Pizzeria Trattoria
2,6 Km
Mostra tutto

Caratteristiche

Rif.:
61151304
Piano:
Su più livelli di 2
Totale piani:
2
Box:
1
Posti auto:
1
Camere da letto:
3
Mostra tutto
Prezzo Prezzo
€ 190.000
Rata mutuo Rata mutuo
€ 895 / mese
Spese annue Spese annue
€ 0
Proponi il tuo prezzoProponi il tuo prezzo

Classe Energetica

G
G
G
G
G
G
G
G
G
EP globale non rinnovabile:
264.91 kW h/m² anno
EP globale rinnovabile:
1.29 kW h/m² anno
EP invernale del fabbricato:
EP estiva del fabbricato:
Anno di costruzione:
1960
Riscaldamento:
Autonomo
Tipo impianto:
A radiatori
Tipo alimentazione:
Metano

Ti interessa visionare l'immobile?

Fissa un appuntamento  Fissa un appuntamento

Richiedi informazioni

Clicca su Leggi per aprire l'informativa
* Questi campi sono obbligatori

Calcola il tuo mutuo

Semplice e senza impegno
Anticipo

( % )
Mutuo

( % )

pochi semplici passi

inserisci i tuoi dati
Questionario completato
Grazie per aver richiesto un appuntamento senza impegno con un nostro Consulente del Credito e Assicurativo.

Hai inserito correttamente tutti i dati necessari e a breve riceverai una e-mail con un link da convalidare per inviare i tuoi dati.
Affiliato
Studio Rinascita Sas
Via Primo Maggio, 25/27 31030 Carbonera (TV)

Il nostro staff


  • Jennifer Amariei
    Coordinatrice

  • Nicola Sponchiado
    Affiliato

  • Edy Strasiotto
    Collaboratore

  • Pasquale Tagliafierro
    Affiliato
Via Primo Maggio, 25/27 31030 Carbonera (TV)
Zona: Carbonera
Mostra su mappa
Affiliato
Studio Rinascita Sas
Via Primo Maggio, 25/27 31030 Carbonera (TV)

2026 Tecnocasa Franchising S.p.A. - P. IVA 08365160152 - Via Monte Bianco 60/A 20089 Rozzano (MI). Ogni agenzia ha un proprio titolare ed è autonoma. Privacy policy | Policy utilizzo | Cookie policy